明星皇宮(榮暉花園)是大埔區一所專為婚宴設計的粵菜酒樓,提供卓越的餐飲服務,致力為新人打造難忘的婚禮盛宴。
場地特色與設施
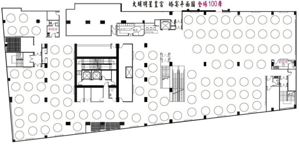
- •位於大埔榮暉花園商場一樓全層,交通便利,並設有停車場,方便賓客蒞臨。
- •宴會廳設計寬敞開揚,氣派豪華,設有先進的燈光效果、投影機及音響系統,營造完美的婚禮氛圍。
- •場內設有新娘房,為新娘提供私密舒適的休息及換裝空間。
宴會規模與服務
- •宴會廳可筵開多達100席,最多可容納1200位賓客,是舉辦大型中式婚宴的理想之選。
- •提供以中式晚宴為主的婚宴服務,由經驗豐富的廚師團隊精心烹製各款粵式佳餚。
- •婚宴套餐價格每席由港幣4988元起,亦提供每位港幣598元的精選菜單。
餐飲及菜式
- •主打傳統粵菜及點心,選用上乘食材,確保菜品色香味俱全,為賓客帶來頂級的味蕾享受。
- •招牌菜式包括頂級亞拉斯加蟹、濃湯雞煲翅、京式片皮鴨、醬燒琵琶乳豬、游水東星斑及雙冬枝竹羊腩煲等。
*以上資訊由AI自動生成,只供參考。有關服務細節及最新價錢,請以商戶提供資料為準。
位於大埔榮暉花園的明星皇宮可筵開100席,附設停車場。
SANSTATION 創辦人Sandy 過往從事喜帖設計超過10年,主力提供bespoke service,為新人度身訂製喜帖。2015年創立Sanstation,提供ready-to-order、半tailor-made 和bespoke service。不少明星如卓韻芝、林奕匡、陳展鵬與單文柔的婚禮喜帖,都由Sandy操刀。
600人
帝京酒店位於旺角東港鐵站之上,交通便利。設計時尚的喜宴堂及喜酌堂均採用高樓底及無柱式設計,環境寬敞,且備有LED幕牆、燈光及影音設備。喜宴堂最多可筵開40席,更配有水晶吊燈,適合舉行華麗婚禮。另外,空中花園深心薈是毛孩友善場地,可以飽覽獅子山景致,適合舉行戶外婚禮或證婚派對。酒店專業的宴會團隊提供貼心服務,讓新人及賓客留下浪漫美好回憶。
360人
香港W酒店秉承將時尚、尖端設計及活力氣息融入品牌理念,集皇室海外風及奢華感於一身,憑完美極優的服務承諾,以玩味和型格姿態為新人創造難以忘懷的世紀婚禮!超高樓底21呎的盛大華麗GREAT ROOM宴會廳,採用無柱式設計,配合開揚巨大的落地玻璃窗,飽覽壯麗海景。
360人
香港喜來登酒店的無柱式宴會廳及其他婚宴場地已於2025年年初全面完成翻新工程,以全新姿態為準新人打造完美無瑕的優雅婚宴。全新裝修的高樓底無柱式宴會廳以淺灰色、大地色及古銅色為主調,天花懸吊的螺旋形Swarovski LED水晶吊燈,氣派不凡;宴會廳配備了最先進的設備如內置LED 幕牆、液晶投影機和屏幕,是優雅浪漫囍宴的理想場地;而小巧雅致的唐廳、採自然光的宋廳及明廳以及其他靈巧高雅的宴會場地,即可舉辦私人雅致的輕婚宴或浪漫溫馨的證婚典禮,迎合不同準新人的需要。 酒店的囍宴菜譜均由屢獲殊榮、連續17年獲米芝蓮推薦及連續7年獲黑珍珠一鑽殊榮的天寶閣團隊主理,為婚宴匠心打造賞心悅味美饌。 香港喜來登酒店細意殷勤的宴會團隊,每年籌辦逾百場的大小婚宴筵席,為準新人締造非凡婚宴。酒店更設婚宴禮賓司,專門於大日子當日緊隨準新人左右,協調婚宴間的繁瑣細節,確保婚宴節奏順利流暢。
960人
香港海洋公園萬豪酒店宴會廳以海洋為主題,擁有無柱型設計和時尚別緻的佈置,並配備先進的多媒體設備、大型LED背景屏幕和燈光調控設備,為賓客帶來全方位的感官享受,細味新人的每個精彩時刻。 宴會廳佔地超過 1,200平方米,可筵開最多80席圓桌;亦可靈活分隔成10至30席的婚宴場地,按準新人預算及賓客人數舉行中小型婚宴,配上個性化的場地佈置,展現非凡氣派。 喜歡戶外的您,不妨考慮舉辦一場被蔚藍天空和翠綠山巒環抱的婚禮。戶外園林婚宴花園面積約208平方米,可容納80位賓客就座; 親友可於一望無際的藍天下見證浪漫感人的一刻, 這裡還是寵物友善的證婚場地,讓最愛的毛小孩可參與您的人生大日子。 酒店大堂更設有全港獨有高達16米的圓柱形水族館,準新人可以在獨特背景前舉行證婚儀式,全港只此一間。而室內婚禮場地亦不受天氣影響,新人和賓客可全身投入海洋婚禮的浪漫氛圍。
600人
香港萬麗海景酒店宴會場地 — 美景閣及海景廳設於八樓,總面積超過1,300平方米。美景閣裝潢典雅高貴,設有玻璃天幕及巨型長窗,為宴會廳注入閃動醉人的光彩,並備有高品質視聽設施,可容納168位賓客,滿足新人一切婚嫁所需;瑰麗堂皇的海景廳採用無柱式設計,環境開揚寬敞,並配合華麗吊燈及多功能LED螢幕牆,好讓多達408位賓客共證兩口子的每個幸福瞬間,並獻上最真摰的祝福!此外,美景閣及海景廳還可合二為一舉行多達600人的盛大婚禮。婚嫁筵席由屢獲殊榮的滿福樓廚師團隊打造,一道道細緻的婚宴佳餚,與特別編寫的西式婚嫁菜譜,為婚慶典禮賦予難以言喻的「囍」悅滋味。另有優雅的會議室八及私密的萬麗套房供喜歡親密小型婚禮的新人互訂誓盟,開展難忘傾心的新章節。
312人
雙魚河鄉村會所環境優美,充滿大自然氣息,廣闊的草地伸延至遠處的馬房,是香港舉行婚宴的理想地點之一。雙魚河於1930年代落成,清幽的鄉郊氣息與平靜的農村生活互相呼應。這裡的環境舒適優雅,溫馨怡人,最適合與至愛親朋慶祝您的結婚盛事。
792人
殿堂級婚宴專門店位於尖沙咀高級商廈 The ONE,引入多項前所未有的場地設施,合共擁有十大創新焦點,單是一條可由地下升起的全港獨有100呎水晶catwalk天橋已令全城傾倒,加上360度雙重旋轉大舞台、300吋巨型LED高清電視屏幕,流星花雨光纖天花等更是驚喜鍾情。
900人
九龍灣百樂門國際宴會廳,採用新穎獨特的室內設計,裝潢精緻細膩,能筵開 75席,給人一種豪華時尚感,與幻變水晶燈拼湊出浪漫醉人的婚宴。
梅夫人婦女會 位處憩靜中區半山的梅夫人婦女會是於一九一六年由當時的港督梅含理夫人所創立 ◦ 是現存香港少數的古典歐陸式建築物 ٫ 並已被特區政府列為法定的古蹟 ◦ 十七呎高的樓底 ٫ 英式的室內佈置以及清綠的大自然環境 ٫ 梅夫人婦女會正提供了一處別具特色的婚宴場地 ◦ 會所擁有多個不同設計的宴會廳供舉行各類型的婚宴 ◦ 舉凡二百人的雞尾酒會٫ 百多人的隆重晚宴 ٫ 或是露天的花園式婚禮都曾在梅夫人婦女會舉行。歐陸佈置的大禮堂 ٫ 氣派超凡的藍廳 ٫ 溫馨典雅的綠廳 ٫ 清幽脫俗的花園廳 ٫ 以及雅緻的露天花園為無數賓客帶來美麗及溫馨的回憶 ◦ 梅夫人婦女會只供會員舉辦宴會。有關入會及宴會詳情٫ 請致電2522-6766向會所查詢或瀏覽www.helenamay.com。
每席港幣 $4,988起